Automatická ovinovačkaRotomatic 1700
Plne automatický ovinovací stroj Rotomatic 1700 je určený pre zaradenie do dopravníkových tratí v prevádzkach s veľmi vysokou kapacitou balenia paliet aj nárokmi na kvalitu balenia, dokonalú fixáciu tovaru pri minimálnej spotrebe materiálu. Riadiace zariadenie umožňuje nadefinovať až 20 baliacich programov a je vybavený mechanizmom pre zvarenie dvoch posledných vrstiev zakončenej fólie.
138paliet/hod.
20počet programov 

Technické informácie
Plne automatický ovinovací stroj pre zaradenie do dopravníkových tratí. Vysoká produktivita stroja je umožnená technológiou balenia, pri ktorej balená paleta nie je otáčaná ako pri štandardných strojoch, ale je ovíjaná vysokou rýchlosťou rotujúcej fólie okolo palety. Pri tomto spôsobe balenia na paletu nepôsobia žiadne dynamické sily. Stroj je schopný po nábehu palety s tovarom automaticky spustiť cyklus balenia, paletu zabaliť a vyslať signál o ukončení balenia. Prvotná poloha balenia je ľubovoľná, čím je umožnená fixácia iba horného alebo spodného okraja tovaru alebo spevnenie uprostred balenej palety. Vysoká kvalita všetkých typov balenia (jednoduchá, krížová, prachotesná a vodotesná) je ešte zlepšená možnosťou tepelného spojenia konca fólie s poslednými vrstvami fólie na balenej palete.
Použitie
Stroj je určený pre prevádzky s vysokou a veľmi vysokou kapacitou balenia a vysokými nárokmi na obal, ktorý zaručuje dokonalú fixáciu tovaru na palete pri minimálnej spotrebe fólie a pre balenie ľahkého tovaru, kde by dynamické sily pôsobiace na paletu pri klasickom spôsobe balenia rotujúcej palety mali za následok posunutie alebo rozsypanie tovaru.
parametre
| Kapacita balenia | 138 pal./hod. |
| Uhlopriečka baleného tovaru | 1 700 mm |
| Počet programov | 20 |
| Veľkosť balenej palety | 800 x 1 200 mm |
| Max. veľkosť balenej palety | 1 250 x 1 250 mm |
| Snímanie výšky tovaru | optické |
| Min. výška baleného tovaru | 500 mm (1 000 s prekryvom) |
| Prieťažné zariadenie | 1 el. motor |
| Max. otáčky obežného kolesa | 60 ot./min. |
| Pôdorys stroja Š x D | 2 400 x 3 165 mm (s dopravníkom) |
| Typ ovládacieho panela | LCD |
| Tlak vzduchu | 0,6 - 1,5 MPa |
| Prevádzkové napätie | 3 kW/400 V/50 Hz |
| Elektrický príkon | 16 kW |
Príslušenstvo
Voliteľné modifikácie
| Zväčšenie max. uhlopriečky baleného tovaru | 2 300, 3 000 mm |
| Nosnosť dopravníka | 1 500 kg |
| Max. výška baleného tovaru | 2 100 mm (pre Skelet 1 700/1, 55 m) ostatné na objednávku |
| Prieťažné zariadenie | 1 el. motor, 1 el. motor digitálne riadený, 2 el. motor digitálne riadený |
Voliteľné príslušenstvo
- Elektrický prítlak nestabilného tovaru
- Automatický prekryv
- Zdvíhacie zariadenie pre pribalenie palety zospodu
- Rovnacie zariadenie
- Prifukovacie zariadenie
- Aplikátor potlačenej lepiacej pásky
- Dopravníkové trate poháňané - valčeková, reťazová - 900, 1 100, 1 200 mm
- Nakladací dopravník
- Paletová zdviž
- Oplotenie stroja
- Svetelné zabezpečenie
Video
Rotomatic 1700
Automatické zakládání hran
Rotomatic light
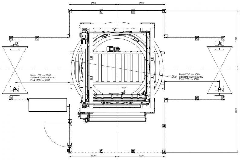
Schéma zástavby
Ovinovací stroj Rotomatic 1700
Podobné stroje
- :
- 800 x 1 200
- :
- áno
- :
- 1 el. motor
- :
- 20
- :
- :
- 35
- :
- s dopravníkom




